voir un test - Thermicience

Transcription

voir un test - Thermicience
DIAGNOSTIC DE PERFORMANCE INTERNET
Informations fournies à titre indicatif : Ce rapport repose sur les réponses fournies par les serveurs d'éligibilité des fournisseurs
d'accès à Internet. Aussi les informations sont fournies à titre indicatif et n'engagent en rien notre responsabilité.
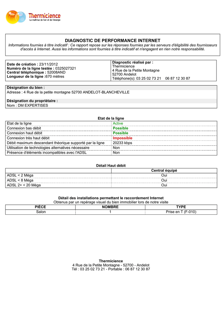
Date de création : 23/11/2012
Numéro de la ligne testée : 0325027321
Central téléphonique : 52008AND
Longueur de la ligne :670 mètres
Diagnostic réalisé par :
Thermicience
4 Rue de la Petite Montagne
52700 Andelot
Téléphone(s): 03 25 02 73 21
06 87 12 30 87
Désignation du bien :
Adresse : 4 Rue de la petite montagne 52700 ANDELOT-BLANCHEVILLE
Désignation du propriétaire :
Nom : DM EXPERTISES
Etat de la ligne
Etat de la ligne
Active
Connexion bas débit
Possible
Connexion haut débit
Possible
Connexion très haut débit
Impossible
Débit maximum descendant théorique supporté par la ligne
20233 kbps
Utilisation de technologies alternatives nécessaire
Non
Présence d'éléments incompatibles avec l'ADSL
Non
Détail Haut débit
Central équipé
Oui
Oui
Oui
ADSL < 2 Méga
ADSL < 8 Méga
ADSL 2+ < 20 Méga
PIÈCE
Salon
Détail des installations permettant le raccordement Internet
Obtenus par un repérage visuel du bien immobilier lors de notre visite
NOMBRE
TYPE
1
Prise en T (F-010)
Thermicience
4 Rue de la Petite Montagne - 52700 - Andelot
Tél : 03 25 02 73 21 - Portable : 06 87 12 30 87
Estimation de la Performance Internet
Débit binaire : kbps pour 1 000 b/s - mbps pour 1 000 kbit/s soit 1 000 000 b/ss
Conseils pour le choix d'un abonnement Internet
Choisir la meilleure offre Internet n'est pas toujours évident, cela demande quelques connaissances techniques et l'on peut
facilement regretter un mauvais choix.
Pour faire le bon choix, DegroupTest vous propose un service de conseil 100% gratuit et 100% indépendant.
Les conseillers DegroupTest sont avant tout des passionné(e)s d'Internet et de multimédia qui vous guideront dans le choix
d'un abonnement Internet en toute impartialité.
Nos experts vous accompagnent dans toutes vos démarches
Quelque soit votre situation (un nouvel abonnement, un changement d'opérateur, un déménagement,...), nous pouvons vous
accompagner dans toutes vos démarches.
Ainsi nos services seront à même de retrouver une ligne de téléphone active ou inactive ou d'ouvrir une nouvelle ligne
téléphonique et de vous aider pour la souscription de votre nouvel abonnement.
Nous vous pouvons également vous faciliter la procédure de résiliation de votre abonnement actuel grâce à un courrier
pré-rempli et son expédition en Lettre Recommandée, si vous le souhaitez.
www.degrouptest.com
Thermicience
4 Rue de la Petite Montagne - 52700 - Andelot
Tél : 03 25 02 73 21 - Portable : 06 87 12 30 87
Pourquoi ce diagnostic
Technologies pour le très haut débit
Pour mieux informer les acquéreurs sur l'état de l'accès
Internet de leur futur logement.
Pour proposer du « très haut débit » (au delà de 20 méga),
deux technologies sont principalement utilisées. D'une part
la fibre optique, qui est utilisée pour relier les gros réseaux
inter-opérateurs et intra-opérateurs. D'autre part, le câble
coaxial, qui est utilisé généralement pour amener la
connexion "très haut débit" jusqu'à l'abonné.
Internet est devenu une commodité essentielle et à l'heure
où l'état évoque la réduction de la fracture numérique, nous
souhaitons renforcer l'information aux acquéreurs sur le
raccordement de leur futur logement aux réseaux Internet.
Comment améliorer sa connexion ADSL ?
Débit binaire
Le débit binaire est une mesure de la quantité de données
numériques transmises par unité de temps.
Il est le plus souvent exprimé en bits par seconde (bit/s, b/s
ou bps) ou un de ses multiples en employant les préfixes
du SI : kb/s (kilobits/s, kbps pour 1 000 b/s), Mb/s
(megabits/s, mbps pour 1 000 kbit/s soit 1 000 000 b/s).
Explications :
Ligne active : Un abonnement téléphonique et/ou ADSL est
actif actuellement sur cette ligne.
Ligne inactive : La ligne est vacante mais elle est toujours
construite (il suffit de la réactiver).
Ligne déconstruite : La ligne n'existe plus, il faut réaliser
une ouverture de ligne et cela nécessite l'intervention d'un
technicien.
Certaines prises téléphoniques comprennent des
condensateurs. Ce condensateur a permis de tester le bon
fonctionnement des lignes téléphoniques. Actuellement ce
condensateur ne sert plus à rien et il n'est pas rare d'en
trouver dans les anciennes installations.
Ce condensateur peut être à l'origine de désynchronisation
ou de pertes de débit. Nous vous conseillons de retirer ce
condensateur de vos prises téléphoniques. Plus
d'informations, rendez-vous sur http://bit.ly/e3VVCI.
Ma ligne est très mauvaise, que faire ?
Si votre ligne est très longue et affiche un affaiblissement
très (trop) élevé, il est malheureusement impossible d'y
faire quoi que ce soit.
Qu'est-ce que le très haut débit ?
La seule manière de modifier les choses serait de faire une
intervention physique sur le réseau cuivré. Ce genre
d'opération est très couteuse et la plupart du temps n'est
pas rentable. Il y a donc peu de chances que France
Télécom intervienne.
Le «très haut débit» n'a pas réellement de définition
technique, la notion de «très haut» étant non chiffrée. Il
s'agit avant tout d'une appellation commerciale.
Si vous êtes nombreux, à être relié au même commutateur,
dans le même cas (tout un quartier par exemple), il est
possible que France Télécom intervienne.
Comme la technologie ADSL est communément nommée
le «haut débit», il est désormais courant de nommer «très
haut débit» les technologies permettant des débits
supérieurs à ceux de l'ADSL.
Origine des caractéristiques techniques
En général, il s'agit de connexions câble ou fibre optique
donnant accès à des débits allant de 20 à 100 méga.
La longueur de ligne ainsi que le Commutateur Local où
elle est raccordée proviennent de France Télécom. Ce sont
des valeurs fiables mais il se peut qu'elles ne soient pas
mises à jour très rapidement en cas de changement (ie.
Déménagement)
Thermicience
4 Rue de la Petite Montagne - 52700 - Andelot
Tél : 03 25 02 73 21 - Portable : 06 87 12 30 87