R4212/CFB810 FR, BE

Transcription

R4212/CFB810 FR, BE
Bosch Thermotechnik GmbH – Sophienstraße 30-32 – D-35576 Wetzlar
B Tous les travaux électriques doivent être réalisés exclusivement
par un électricien.
B Exécuter les travaux d’électricité conformément aux normes en
vigueur et aux prescriptions locales.
B Effectuer le branchement au réseau de manière fixe et en
respectant l’ordre des phases.
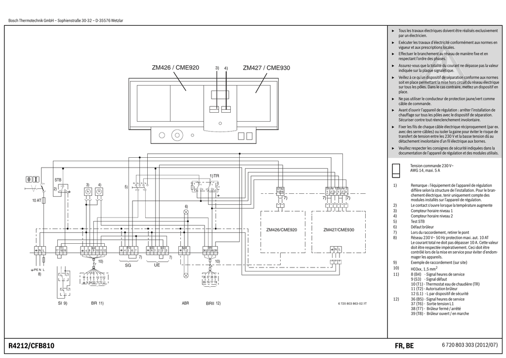
ZM426 / CME920
3)
4)
B Assurez-vous que la totalité du courant ne dépasse pas la valeur
ZM427 / CME930
indiquée sur la plaque signalétique.
B Veillez à ce qu’un dispositif de séparation conforme aux normes
soit en place permettant la mise hors circuit du réseau électrique
sur tous les pôles. Dans le cas contraire, mettez un dispositif en
place.
B Ne pas utiliser le conducteur de protection jaune/vert comme
câble de commande.
B Avant d’ouvrir l’appareil de régulation : arrêter l’installation de
chauffage sur tous les pôles avec le dispositif de séparation.
Sécuriser contre tout réenclenchement involontaire.
B Fixer les fils de chaque câble électrique réciproquement (par ex.
avec des serre-câbles) ou isoler la gaine pour éviter le risque de
transfert de tension entre les 230 V et la basse tension dû au
détachement involontaire d’un fil électrique aux bornes.
B Veuillez respecter les consignes de sécurité indiquées dans la
documentation de l’appareil de régulation et des modules utilisés.
Tension commande 230 V~
AWG 14, maxi. 5 A
1)TR
STB
1a
1
2)
1
2
3
3)
4)
h
h
5)
2b 2a
1b 1a
2
1
1
2
1
3
2
3
STB2
Stufe 1 Stufe 2
15 16
1 2 3 1 2 3
7)
10 AT
7)
7)
6)
ZM426/CME920
N L
SI
BR
4 8 9 10 11 12
17 18 19
SG
UE
UE
N 1 2 3 3
4 5 6 7
7)
7
ABR
1 2
BRII
36 37 38 39
ZM427/CME930
SG
N L
UE
9)
10)
4
/PE N L
8)
2
3
1
2
2)
3)
4)
5)
6)
7)
8)
7)
10)
10)
1)
4 8 9 10 1112
36 37 38 39
N B4 S3 T1 T2 L1
B5 T6 T7 T8
11)
3
1
SI 9)
R4212/CFB810
BR 11)
ABR
BRII 12)
12)
6 720 803 863-02.1T
Remarque : l’équipement de l’appareil de régulation
diffère selon la structure de l’installation. Pour le branchement électrique, tenir uniquement compte des
modules installés sur l’appareil de régulation.
Le contact s'ouvre lorsque la température augmente
Compteur horaire niveau 1
Compteur horaire niveau 2
Test STB
Défaut brûleur
Lors du raccordement, retirer le pont
Réseau 230 V~ 50 Hz protection maxi. aut. 10 AT
Le courant total ne doit pas dépasser 10 A. Cette valeur
doit être respectée impérativement. Ceci doit être
contrôlé lors de la mise en service pour éviter d’endommager les appareils.
Exemple de raccordement (sur site)
H03xx, 1,5 mm2
8 (B4) - Signal heures de service
9 (S3) - Signal défaut
10 (T1) - Thermostat eau de chaudière (TR)
11 (T2) - Autorisation brûleur
12 (L1) - L par dispositif de sécurité
36 (B5) - Signal heures de service
37 (T6) - Sortie tension L1
38 (T7) - Brûleur fermé / arrêté
39 (T8) - Brûleur ouvert / en marche
FR, BE
6 720 803 303 (2012/07)
Bosch Thermotechnik GmbH – Sophienstraße 30-32 – D-35576 Wetzlar
A
B
A
B
2
1
2
1
ABR
BR
BR II
FZ
HW
PK
SG
SI
M
SR
SR
STB
TR
UE
M
FZ
SR
PK
BR
BR
FZ
5
3
2
1
ZM426/
CME920
ZM427/
CME930
1
2
3
2
1
4
5
6
Message de défaut brûleur sur site
Brûleur fioul/gaz niveau 1 maxi. 10 A
Raccordement brûleur niveau 2 ou raccordement
pour brûleur modulant
Sonde de température supplémentaire
Bouteille de mélange hydraulique
Équipements de sécurité
Bornes de connexion pour clapet des fumées
Possibilité de raccordement pour équipements de
sécurité
Vanne de régulation température de retour
Limiteur de température de sécurité
Régulateur de température d’eau de chaudière
Bornes de raccordement pour la surveillance des
gaz d'échappement
Module (STB supplémentaire), option, raccordement voir schéma de connexion ZM426
Module d’exploitation de la chaudière, option,
Raccordement voir schéma de connexion
ZM427/CME930
Module de fonction ZM427/CME930
Appareil de régulation R4212/CFB810
Chaudière Ecostream, avec vanne de régulation
séparée et sonde de température supplémentaire
FZ dans doigt de gant chaudière avec collecteur
sous pression (sans découplage hydraulique).
Chaudière Ecostream, avec pompe circuit
chaudière, vanne de régulation séparée et sonde de
température supplémentaire FZ dans doigt de gant
chaudière avec découplage hydraulique par ex.
bouteille de mélange hydraulique.
Chaudière basse température, avec vanne de
régulation séparée, pompe by-pass et sonde de
température supplémentaire FZ dans doigt de gant
retour chaudière.
Chaudière basse température, avec vanne de
régulation séparée, pompe circuit chaudière et
sonde de température supplémentaire FZ dans
doigt de gant retour chaudière.
FZ
PK
HW
Régulation Ecostream (uniquement en liaison avec
le module ZM427/CME930)
Régulation température de retour (uniquement en
liaison avec le module ZM427/CME930)
M
BR
BR
SR
M
4
SR
PK
FZ
6
6 720 803 863-03.1T
R4212/CFB810
FR, BE
6 720 803 303 (2012/07)