Vous pouvez télécharger le document pdf correspondant aux

Transcription

Vous pouvez télécharger le document pdf correspondant aux
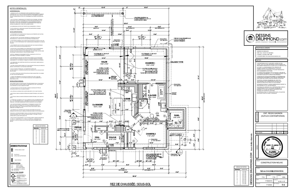
NOTES G…N…RALES:
L'ENTREPRENEUR DOIT:
1) V…RIFIER TOUTES LES DIMENSIONS AVANT DE D…BUTER LES TRAVAUX.
2) RESPECTER S' IL Y A LIEU TOUTES LES EXIGENCES DES DOCUMENTS CONNEXES
AUX PLANS (EX: DEVIS, PLAN DE VENTILATION, ETC.) ET INFORMER LE CLIENT DE
TOUTES CONS…QUENCES DUES AUX CHANGEMENTS QUI SERONT APPORT…S AUX
PLANS.
- LES COTATIONS ET DIMENSIONS ONT PRIORIT… SUR LES DESSINS. CERTAINES
COTES SONT SUJETTES ¿ AJUSTEMENT EN FONCTIONS DES MAT…RIAUX ET/OU
M…THODES CHOISIS PAR L'ENTREPRENEUR. SI DES DIVERGENCES ENTRE LE
CHANTIER ET LES PLANS SURVIENNENT, L'ENTREPRENEUR DOIT AVISER LES
DESSINS DRUMMOND INC. DANS LES PLUS BREFS D…LAIS.
-LES DIMENSIONS …CRITES ONT PRIORIT… SUR LES MESURES ¿ L' …CHELLE.
-TOUTES ERREURS OU OMISSIONS DOIVENT TRE RAPPORT…ES ¿ DESSINS
DRUMMOND INC. IMM…DIATEMENT.
NOTES IMPORTANTES:
- UN TRAITEMENT ANTI-POURRITURE EST REQUIS AUX EXTR…MIT…S DES POUTRES
APPUY…ES SUR DE LA MA«ONNERIE.
- PAR PR…CAUTION, VOUS DEVRIEZ S…PARER LES CAISSONS D'UN FOYER
PR…FABRIQU… DE L'OSSATURE PAR DES MAT…RIAUX INCOMBUSTIBLES.
-LA PROFONDEUR MINIMALE DES FONDATIONS EN-DESSOUS DU NIVEAU DU SOL FINI
EST DE 4'-6". CETTE PROFONDEUR PEUT VARIER SELON LES R…GIONS ET LE CODE EN
VIGUEUR.
- LES EXTR…MIT…S DES POUTRES D'ACIER S'APPUYANT SUR UN MUR EXT…RIEUR
DOIVENT TRE ISOL…ES SUR UNE DISTANCE DE 24".
POUR NOUS JOINDRE
- POUR …VITER LE SOUL»VEMENT DES FONDATIONS D¤ AU GEL PAR ADH…RENCE,
TOUTES LES FONDATIONS DE B…TON: MUR, PILASTRE ET ANGLE DE B…TON,
DEVRONT TRE RECOUVERTES D'UNE MEMBRANE (POLY…THYL»NE, CARTON-FIBRE
GOUDRONN…, PAPIER ASPHALTE 15lbs OU ISOLANT RIGIDE).
AGENCE DE BEAUCE
1083, boul. Vachon N. Ste-Marie
( Quebec ) Canada, G6E 1M8
- METTRE 2" MINIMUM DE D…GAGEMENT ENTRE LA SURFACE DU TOIT ET UN
REV TEMENT EXT…RIEUR SENSIBLE ¿ L'HUMIDIT….
1-418-387-0232
- LES FEN TRES DE SOUS-SOL QUI SONT SOUS LE NIVEAU DU SOL FINI DOIVENT
TRE ENTOUR…ES DE MARGELLES EN T‘LE GALVANIS…E REMPLIES DE PIERRES
CONCASS…ES ET D' UN DRAIN DE 4" MENANT AU DRAIN DE CONTOUR DU B¬TIMENT.
[email protected]
NOTES:
- LES DIMENSIONS DES FEN TRES D…CRITES AU PLAN PEUVENT VARIER SELON LE
FABRICANT CHOISI.
L'ENTREPRENEUR DOIT S'ASSURER, AUPR»S DE SON
CLIENT, QUE LES PLANS R…PONDENT AD…QUATEMENT AUX
R»GLEMENTS MUNICIPAUX OŸ AURA LIEU LA CONSTRUCTION.
- LES PARE-VAPEURS MENTIONN…S AUX PLANS DEVRONT TRE SCELL…S LORSQU'ILS
SERONT SUPERPOS…S ET AUTOUR DES OUVERTURES.
- POUR LES MURS EXT…RIEURS, IL EST IMPORTANT D'INSTALLER
UN PARE-VAPEUR ¿ L' ARRI»RE DES BOŒTES …LECTRIQUES ET DE LE SCELLER AVEC
CELUI DU MUR.
LE CLIENT A LA RESPONSABILIT… DE V…RIFIER LES
NORMES AUPR»S DE SA MUNICIPALIT…. CELLES-CI
VARIENT SELON LES R…GIONS ET PEUVENT N…CESSITER
DES CHANGEMENTS AUX PLANS.
- DU GYPSE HYDROFUGE DEVRA TRE INSTALL… DANS CHAQUE PI»CE OŸ UN BAIN
OU UNE DOUCHE SERA INSTALL….
LA CONCEPTION ORIGINALE DE CE PLAN EST L'OEUVRE DE
LES DESSINS DRUMMOND inc. ET CE DERNIER D…TIENT TOUS
LES DROITS SUR CETTE CONCEPTION ORIGINALE
- IL SERAIT RECOMMAND… D'AJOUTER UN GYPSE 5/8" DE TYPE "X" SUR UNE
FOURRURE 1"X3" @16" C/C AU PLAFOND DU SOUS-SOL, POUR AUGMENTER LA
R…SISTANCE AU FEU.
L'ACHAT DE CE TYPE DE PLAN PERMET A L'ACQUEREUR DE
LE MODIFIER L…GALEMENT A DES FINS DE CONSTRUCTION
D'EN FAIRE DES COPIES POUR SA PROPRE UTILISATION
NOTES STRUCTURALES:
TOUTEFOIS, DESSINS DRUMMOND INC. N'EST PAS
RESPONSABLE DES CONS…QUENCES RELI…ES AUX
MODIFICATIONS EFFECTU…ES AU PLAN ORIGINAL.
-DES CORRECTIONS AU PLAN PEUVENT TRE N…CESSAIRE POUR L'UTILISATION DE
POUTRELLES DANS LES STRUCTURES DU PLANCHER OU DU TOIT. VOUS DEVREZ
VOUS R…F…RER AU PLAN DU MANUFACTURIER.
CES MODIFICATIONS ET LEURS CONS…QUENCES SERONT LA
RESPONSABILIT… DE L'ENTREPRENEUR.
QUICONQUE SE SERVANT DE CE REPRODUCTIBLE SANS LE
CONSENTEMENT …CRIT DE DESSINS DRUMMOND inc.
ENFREINT LA LOI SUR LES DROITS D'AUTEUR ET EST
PASSIBLE DE POURSUITE JUDICIAIRE.
- LA STRUCTURE DE CE PLAN (POUTRES, LINTEAUX, SOLIVES) DOIT TRE DE
CAT…GORIE …PINETTE NO. 1&2 (SAUF OŸ NOTE).
- LES LINTEAUX AU-DESSUS DES OUVERTURES SONT 2-2"X10" (SAUF OŸ NOTE).
CE REPRODUCTIBLE FUT D…VELOPP… POUR L'UTILISATION
EXCLUSIVE POUR LE CLIENT CI-DESSOUS
- LES POTEAUX DANS LES MURS EXT…RIEURS DOIVENT TRE MIN. 3-2"X6" (SAUF OŸ
NOTE).
- LES POTEAUX DANS LES MURS INT…RIEURS DOIVENT TRE MIN. 3-2"X4" (SAUF OŸ
NOTE).
- LE FABRICANT DE FERME DE TOIT DOIT V…RIFIER TOUTES LES DIMENSIONS, AFIN
QU' IL AIT CONCORDANCE AVEC L' ENSEMBLE DU PLAN. SUITE AUX CALCULS DU
FABRICANT, CERTAINES DIMENSIONS PEUVENT N…CESSITER UN AJUSTEMENT.
- DES CONTREVENTEMENTS TEMPORAIRES ET PERMANENTS DOIVENT TRE
INSTALL…S DANS LES FERMES DE TOIT SELON LES SP…CIFICATIONS DE LA
BROCHURE PUBLI…E PAR L'ASSOCIATION DE STRUCTURE DE BOIS. (VOIR LE
FABRICANT DE FERMES DE TOIT).
- LES PANNEAUX DE CONTREPLAQU… PEUVENT TRE REMPLAC…S PAR DES
PANNEAUX DE PARTICULES ¿ LAMELLES ORIENT…ES (OSB) OU AUTRE …QUIVALENCE.
INFO CLIENT
-PR…VOIR DU CONTREVENTEMENT DANS LES COINS DES MURS EXT…RIEURS. LE
CONTREVENTEMENT PEUT TRE EN CONTRE-PLAQU… 1/2", EN OSB 1/2" OU DE
LISI»RES M…TALLIQUES INSTALL…ES ¿ 45∞.
- DANS UN MUR DE MA«ONNERIE, LES ATTACHES DE M…TAL SERONT ESPAC…ES DE
3'-0'' MAX. ¿ L' HORIZONTAL ET ¿ 16" MAX. ¿ LA VERTICAL. LA GROSSEUR DES
LINTEAUX D' ACIER AU-DESSUS DES OUVERTURES SERA D…TERMIN…E PAR LE
MA«ON.
ENT. REGIS GAGNON
(DUPLEX CONTEMPORAIN)
C…DULE DE PORTES
DIMENSION
16" x 80"
18" x 80"
24" x 80"
28" x 80"
30" x 80"
32" x 80"
36" x 80"
48" x 80"
60" x 80"
34" x 82"
72" x 80"
REVISION
DATE
NO
PAR
SCEAU:
A
B
C
D
E
F
G
H
J
K
L
POTEAU DANS LE MUR
POUTRE OU
STRUCTURE SUPPORTANTE
MUR PORTEUR
PROJET
CONSTRUCTION NEUVE
ABR…VIATION
G.C.
GARDE-CORPS
M.C.
M.O.
MAIN COURANTE
FOUR MICRO ONDES
E
.
C…DULE DE PORTES
DESSIN
R…F…RENCE A LA C…DULE
DE PORTES
BULLE DE COUPE
-LA FL»CHE INDIQUE LE
SENS VERS LEQUEL ON
REGARDE LA PARTIE
COUP…E.
-LE NUM…RO DE LA COUPE.
-LE NUM…RO DE LA FEUILLE
OŸ L'ON RETROUVE LA
COUPE.
-LE NUM…RO DE LA FEUILLE
D'OŸ PROVIENT LA COUPE.
DIMENSION
A
B
C
D
E
F
G
H
J
K
L
16" x 80"
18" x 80"
24" x 80"
28" x 80"
30" x 80"
32" x 80"
36" x 80"
48" x 80"
60" x 80"
34" x 82"
72" x 80"
CONCU
REALISE
F.G.
DATE
PLAN NO.
VERIFIE
ASA.
F.G.
17/08/2015
P-53503
ECHELLE
3/16"=1'-0"
NO. FEUILLE
POUR NOUS JOINDRE
AGENCE DE BEAUCE
1083, boul. Vachon N. Ste-Marie
( Quebec ) Canada, G6E 1M8
1-418-387-0232
[email protected]
NOTES:
L'ENTREPRENEUR DOIT S'ASSURER, AUPR»S DE SON
CLIENT, QUE LES PLANS R…PONDENT AD…QUATEMENT AUX
R»GLEMENTS MUNICIPAUX OŸ AURA LIEU LA CONSTRUCTION.
LE CLIENT A LA RESPONSABILIT… DE V…RIFIER LES
NORMES AUPR»S DE SA MUNICIPALIT…. CELLES-CI
VARIENT SELON LES R…GIONS ET PEUVENT N…CESSITER
DES CHANGEMENTS AUX PLANS.
LA CONCEPTION ORIGINALE DE CE PLAN EST L'OEUVRE DE
LES DESSINS DRUMMOND inc. ET CE DERNIER D…TIENT TOUS
LES DROITS SUR CETTE CONCEPTION ORIGINALE
L'ACHAT DE CE TYPE DE PLAN PERMET A L'ACQUEREUR DE
LE MODIFIER L…GALEMENT A DES FINS DE CONSTRUCTION
D'EN FAIRE DES COPIES POUR SA PROPRE UTILISATION
TOUTEFOIS, DESSINS DRUMMOND INC. N'EST PAS
RESPONSABLE DES CONS…QUENCES RELI…ES AUX
MODIFICATIONS EFFECTU…ES AU PLAN ORIGINAL.
CES MODIFICATIONS ET LEURS CONS…QUENCES SERONT LA
RESPONSABILIT… DE L'ENTREPRENEUR.
QUICONQUE SE SERVANT DE CE REPRODUCTIBLE SANS LE
CONSENTEMENT …CRIT DE DESSINS DRUMMOND inc.
ENFREINT LA LOI SUR LES DROITS D'AUTEUR ET EST
PASSIBLE DE POURSUITE JUDICIAIRE.
INFO CLIENT
CE REPRODUCTIBLE FUT D…VELOPP… POUR L'UTILISATION
EXCLUSIVE POUR LE CLIENT CI-DESSOUS
ENT. REGIS GAGNON
(DUPLEX CONTEMPORAIN)
REVISION
DATE
PAR
SCEAU:
NO
PROJET
CONSTRUCTION NEUVE
.
DESSIN
CONCU
REALISE
F.G.
DATE
PLAN NO.
VERIFIE
ASA.
F.G.
17/08/2015
P-53503
ECHELLE
3/16"=1'-0"
NO. FEUILLE